| 現状 | 空室 |
|---|---|
| 入居時期 | 相談 |
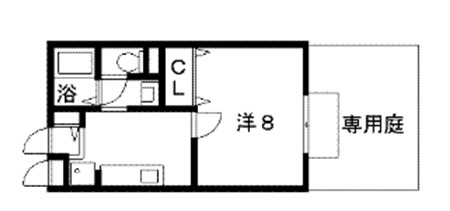
| 間取り詳細 | 洋室8畳1室 |
| 構造 | 鉄骨 |
| ガレージ | あり 無料 |
| 入居条件 | 単身 |
| 備考 | JR東海道線の長岡京駅から徒歩でわずか3分、恵まれた立地の物件です。間取りは一般的な1Kタイプですが、メインルームは8畳、キッチンも広いのが特長です。また、単身者用物件ながら専用庭を備えています。設備面では、温水洗浄式のトイレや光ファイバーのインターネット回線、シャワー付き洗面台など最新の設備を備えており、快適な生活をバックアップします。また、クローゼットの他、床下収納やシューズボックスも備えているので、荷物の多い方でも安心です。近隣には、生活に必要な施設やお店の他、勝竜寺城公園もあり、便利で快適な生活を満喫できます。 |
| 設備 | システムキッチン 2口コンロ バストイレ別 シャワー 温水洗浄便座 洗面台 シャワー付洗面台 洋式 エアコン1台 光ファイバー インターホン インターネット フローリング 室内洗濯機置き場 クロゼット シューズボックス 床下収納 |
![]()

