物件詳細
JOロワイヤル Eタイプ
| 所在地 | 長岡京市天神1丁目10-28 >MAPを見る |
|---|---|
| 種 別 | マンション 1階建 |
| 交 通 | 阪急/長岡天神徒歩3分 JR(東海道線)/長岡京徒歩12分 阪急/西向日 徒歩34分 |
| 賃料 / 共益費 | 95,000円 / 9,000円 |
| 敷金/礼金 | - / 200,000円 |
敷引/焼却金 | - / - - / - |
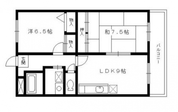
| 間取り/面積 | 2LDK / 67.02m² |
| 築年月 | 中古 / 1995年2月 |
| 現状 | |
| 入居時期 | 下旬 |
| 間取り詳細 | LDK その他 その他 |
| 構造 | 鉄筋コンクリート |
| ガレージ | あり 15,000円 |
| 入居条件 | |
| 備考 | 阪急電鉄の長岡天神駅から徒歩でわずかに3分という抜群の立地とオシャレな外装、間取りは2LDKで広めのダイニングキッチンを備えており、十分な居住スペースが確保されています。また、オートロック、カードキーを採用し、セキュリティーも安心です。敷地内に有料のガレージを備えるため、車を所有している人にもオススメです。近隣には市役所や病院、銀行、飲食店など生活に必要な施設やお店が多数あり、利便性も抜群の優良物件です。 バストイレ別、バルコニー、エアコン、ガスコンロ対応、フローリング、シャワー付洗面台、オートロック、室内洗濯置、脱衣所、洗面所独立、駐輪場、押入、CATV、光ファイバー、敷金不要、二人入居相談、バイク置場、カードキー、高温差湯式、3駅以上利用可、駅徒歩5分以内、上階無し、和室、全居室6畳以上、都市ガス、BS、高速ネット対応、年内入居可 阪急京都線/長岡天神 歩3分、JR東海道本線/長岡京 歩12分 、阪急京都線/西向日 歩34分、ドラッグストア ライフォート 長岡天神店(ドラッグストア)まで260m、リバティ長岡(スーパー)まで280m、西友 長岡店(その他)まで330m、ローソンストア100長岡店(その他)まで330m、長岡京市立図書館(その他)まで390m |
| 設備 | 高温差湯式 シャワー付洗面台 洋式 エアコン2台 光ファイバー オートロック カードキー 給湯 室内洗濯機置き場 トランクルーム |
| 小・中学校区 | 長岡第六小学校 450m 長岡中学校 500m |














