物件詳細
開田4丁目テナント
| 所在地 | 長岡京市開田4丁目>MAPを見る |
|---|---|
| 種 別 | 店舗(建物一部) 1階/3階建 |
| 交 通 | 阪急/長岡天神徒歩4分 |
| 賃料 / 共益費 | 150,000円 / 円 |
| 敷金/礼金 | 600,000円 / 600,000円 |
敷引/焼却金 | - / - - / - |
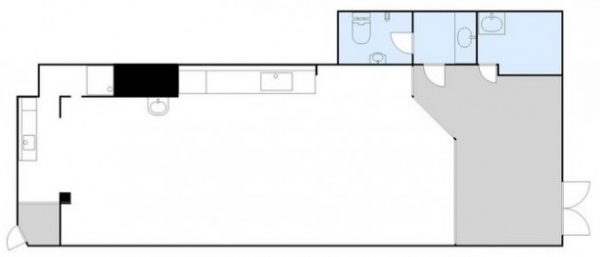
| 間取り/面積 | / 96.00m² |
| 築年月 | 中古 / 1991年3月 |
| 現状 | 空室 |
| 入居時期 | |
| 間取り詳細 | |
| 構造 | その他 |
| ガレージ | なし |
| 入居条件 | |
| 備考 | |
| 設備 | |
開田4丁目テナント ~松山興産~

| 所在地 | 長岡京市開田4丁目>MAPを見る |
|---|---|
| 種 別 | 店舗(建物一部) 1階/3階建 |
| 交 通 | 阪急/長岡天神徒歩4分 |
| 賃料 / 共益費 | 150,000円 / 円 |
| 敷金/礼金 | 600,000円 / 600,000円 |
敷引/焼却金 | - / - - / - |
| 間取り/面積 | / 96.00m² |
| 築年月 | 中古 / 1991年3月 |
| 現状 | 空室 |
| 入居時期 | |
| 間取り詳細 | |
| 構造 | その他 |
| ガレージ | なし |
| 入居条件 | |
| 備考 | |
| 設備 | |