200件中/161~170
17/20
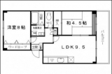
物件番号
1324
83,000円円
敷金礼金
150,000円
100,000円
保証金敷引償却金
-
借家
3階/3階建
821
阪急/長岡天神徒歩19分
JR(東海道線)/長岡京徒歩30分
83,000円3,000円
300,000円
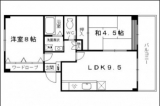
マンション
657
阪急/長岡天神徒歩5分
83,000円8,500円
1階/3階建
667
JR(東海道線)/長岡京徒歩9分
200,000円
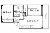
3階/5階建
228
阪急/長岡天神徒歩24分
83,000円7,000円
250,000円
4階/5階建
668
阪急/長岡天神徒歩9分
84,000円6,000円
1カ月
2カ月
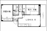
938
阪急/西向日徒歩19分
84,000円4,500円
739
JR(東海道線)/長岡京徒歩8分
阪急/長岡天神徒歩12分
阪急/西向日徒歩32分
85,000円5,200円
50,000円
762
JR(東海道線)/長岡京徒歩4分
阪急/長岡天神徒歩8分
85,000円2,500円
170,000円
742
阪急/長岡天神徒歩10分
JR(東海道線)/長岡京徒歩5分
89,000円4,000円
178,000円
1階/4階建
松山興産 地域情報