201件中/1~10
1/21
物件番号
258
阪急/東向日徒歩4分
30,000円3,000円
敷金礼金
80,000円
0円
保証金敷引償却金
-
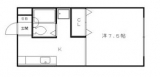
アパート
1階/3階建
1250
阪急/大山崎徒歩3分
30,000円円
30,000円
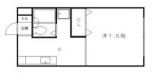
マンション
256
阪急/長岡天神徒歩10分
32,000円3,000円
32,000円
3階/3階建
1040
34,000円3,000円
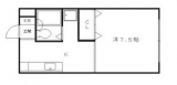
2階/4階建
544
阪急/長岡天神徒歩12分
35,000円3,000円
2階/2階建
291
阪急/西向日徒歩4分
1階/2階建
561
阪急バス/薬師堂徒歩4分
35,000円2,000円
150,000円
100,000円
648
JR(東海道線)/長岡京徒歩5分
50,000円
2階/3階建
697
阪急/大山崎徒歩1分
JR(東海道線)/山崎徒歩2分
35,000円5,000円
1220
1カ月
松山興産 地域情報