199件中/41~50
5/20
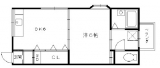
物件番号
111
JR(東海道線)/長岡京徒歩22分
46,000円3,000円
敷金礼金
-
100,000円
保証金敷引償却金
マンション
3階/4階建
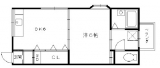
803
阪急/西山天王山徒歩10分
47,000円3,000円
50,000円
5階/5階建
1335
阪急/長岡天神徒歩10分
47,000円5,000円
1階/2階建
103
150,000円
2階/3階建
1232
アパート
556
JR(東海道線)/長岡京徒歩5分
48,000円円
107
JR(東海道線)/長岡京徒歩10分
48,000円2,000円
652
JR(東海道線)/長岡京徒歩4分
48,000円3,000円
1カ月
4階/4階建
1170
阪急/長岡天神徒歩3分
JR(東海道線)/長岡京徒歩7分
0円
723
阪急/西山天王山徒歩4分
阪急/長岡天神徒歩21分
48,000円4,000円
30,000円
松山興産 地域情報