201件中/51~60
6/21
物件番号
723
阪急/西山天王山徒歩4分
阪急/長岡天神徒歩21分
JR(東海道線)/長岡京徒歩22分
48,000円4,000円
敷金礼金
30,000円
100,000円
保証金敷引償却金
-
アパート
1階/2階建
100
阪急/長岡天神徒歩4分
49,000円2,000円
50,000円
マンション
2階/3階建
503
阪急/長岡天神徒歩5分
JR(東海道線)/長岡京徒歩8分
49,000円3,000円
1カ月
127
阪急/西向日徒歩16分
49,500円6,000円
2階/2階建
524
阪急/長岡天神徒歩13分
JR(東海道線)/長岡京徒歩16分
50,000円3,000円
3階/4階建
122
阪急/長岡天神徒歩9分
50,000円5,000円
1階/5階建
690
阪急バス/長岡天神徒歩20分
50,000円円
726
阪急/長岡天神徒歩28分
借家
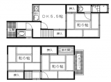
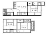
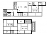
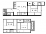
1242
阪急/長岡天神駅徒歩20分
JR(東海道線)/長岡京徒歩30分
一戸建て
1325
51,000円2,000円
松山興産 地域情報