こだわりから探す -> 駅から徒歩5分圏内
67件中/51~60
6/7
物件番号
762
JR(東海道線)/長岡京徒歩4分
阪急/長岡天神徒歩8分
85,000円2,500円
敷金礼金
170,000円
保証金敷引償却金
-
マンション
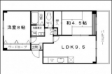
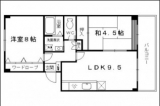
742
阪急/長岡天神徒歩10分
JR(東海道線)/長岡京徒歩5分
89,000円4,000円
178,000円
1階/4階建
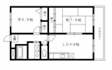
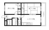
246
89,000円10,000円
99,000円
19,800円
5階/5階建
436
JR(東海道線)/長岡京徒歩3分
93,000円10,000円
3カ月
1階/5階建
176
阪急/長岡天神徒歩5分
JR(東海道線)/長岡京徒歩18分
95,000円7,000円
150,000円
0円
3階/4階建
1206
阪急/西山天王山徒歩2分
95,000円5,000円
100,000円
250,000円
2階/3階建
741
阪急/長岡天神徒歩3分
JR(東海道線)/長岡京徒歩12分
阪急/西向日 徒歩34分
95,000円9,000円
200,000円
1階建
1022
阪急/長岡天神徒歩7分
3階/3階建
238
96,000円4,400円
96,000円
753
97,000円8,000円
194,000円
松山興産 地域情報