種類から探す -> マンション
154件中/61~70
7/16
物件番号
177
JR(東海道線)/長岡京徒歩5分
60,000円4,000円
敷金礼金
120,000円
150,000円
保証金敷引償却金
-
マンション
2階/3階建
722
阪急バス/奥海印寺徒歩2分
阪急/長岡天神徒歩27分
阪急/西山天王山徒歩27分
0円
62,000円
1階/3階建
820
阪急/西向日徒歩15分
JR(東海道線)/長岡京徒歩34分
62,000円3,000円
1カ月
2階/2階建
1093
阪急/西山天王山徒歩7分
阪急/長岡天神徒歩16分
3階建
930
JR(東海道線)/長岡京徒歩8分
阪急/長岡天神徒歩9分
阪急/西山天王山徒歩15分
63,000円3,000円
1280
阪急/桂徒歩15分
64,000円8,000円
50,000円
64,000円
2階/5階建
941
阪急/長岡天神徒歩2分
JR(東海道線)/長岡京徒歩10分
64,000円3,500円
70,000円
209
64,000円6,000円
100,000円
4階/4階建
535
阪急/東向日徒歩15分
65,000円5,000円
80,000円
874
阪急/西向日徒歩9分
阪急/長岡天神徒歩32分
JR(東海道線)/長岡京徒歩30分
65,000円6,000円
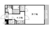
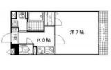
2階
松山興産 地域情報